1815 2nd St
Alameda, CA 94501

Scroll to Content

Details

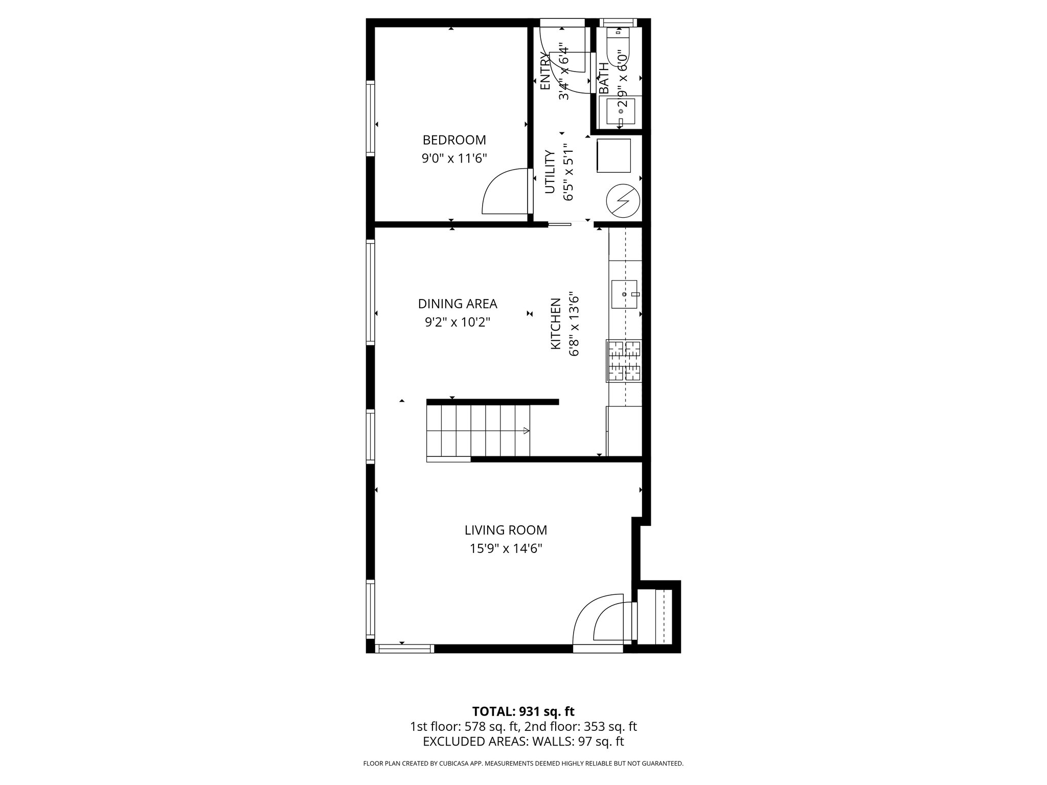
Rare Expanded Corner Unit in Woodstock Co-Op
This is not your typical Woodstock floor plan.

Tucked into a desirable corner location, this two-story home features a rare extension that adds a third bedroom and half bath on the main level — a layout that most units in the community simply do not have. Whether you need a guest room, office, nursery, or multi-generational flexibility, this added space completely changes how the home lives.

The interior has been fully refreshed with:
• Updated kitchen cabinets and appliances
• Luxury vinyl plank flooring throughout
• Fresh interior paint
• New electrical wiring, breaker box, and disposal hookup
• New water heater
• In-unit laundry (Newly installed dryer and washer combo)
• Wired for ATT Fiber
• Crawl space moisture barrier added

The open kitchen flows effortlessly into the living and dining areas, creating a clean, modern space ideal for everyday living and entertaining. Natural light pours in thanks to the corner positioning, adding warmth and privacy.
Upstairs, you’ll find two spacious bedrooms and a full bath. Downstairs, the additional bedroom and half bath offer flexibility that makes this home stand out from the rest.

Why Woodstock Co-Op?
Woodstock Co-Op offers a quiet, established Alameda community with mature landscaping and a neighborhood feel. It’s centrally located with easy access to:
• Alameda Landing (Target, Safeway, In-N-Out, Starbucks)
• Webster Street shops and restaurants
• Spirits Alley breweries and waterfront dining
• Washington Park and Crab Cove
• Alameda Beach
• SF Ferry terminal for an easy commute
• Top-rated local schools
Living here means being minutes from the water while still enjoying quick access to Oakland, BART, and San Francisco.
This is an opportunity to own one of the most flexible floor plans in the community — fully updated and move-in ready.

  • $659,000
  • 3 Bedrooms
  • 1.5 Bathrooms
  • 980 Sq/ft
  • Built in 1942

Images

Videos

Floor Plans

3D Tour

Content Coming Soon

Contact

Feel free to contact us for more details!